當前位置:首頁>>產品中心>>壓力/差壓/密度變送器系列 >
單法蘭遠傳壓力液位變送器
一、儀表概述:單法蘭遠傳壓力液位變送器是引進國外**技術和設備生產的新型變送器,關鍵原材料,元器件和零部件均源自進口,整機經過嚴格組裝和測試,該產品具有設計原理**、品種規格齊全、安裝···
訂購熱線:181-5507-8261

一、儀表概述:
單法蘭遠傳壓力液位變送器是引進國外**技術和設備生產的新型變送器,關鍵原材料,元器件和零部件均源自進口,整機經過嚴格組裝和測試,該產品具有設計原理**、品種規格齊全、安裝使用簡便等特點。由于該機型外觀上完全融合了目前國內流行,并被**使用的兩種變送器(羅斯蒙特3051與橫河EJA)的結構優點,讓使用者有耳目一新的感覺,同時與傳統的系列產品在安裝上可直接替換,有很強的通用性和替代能力。為適合國內自動化水平的不斷提高和發展,該系列產品除設計小巧精致外,更推出具有HART現場總線協議的智能化功能。

MIK3051LT單法蘭壓力變送器可對各種容器進行液位,密度的精度測量,有平法蘭和插入式法蘭兩種,適用于高粘度介質或懸浮液體測量。

二、測量原理:
單法蘭遠傳壓力液位變送器是由3051GP智能型壓力變送器用毛細管跟不銹鋼法蘭盤連接,是一種通過安裝在管道或容器上的遠傳裝置來感受被測壓力,該壓力經毛細管內的灌充硅油(或其它的液體)傳遞至變送器的主體,然后由變送器主體內的δ室和放大線路板,將壓力或差壓轉換4~20mA.DC信號輸出,與符合HART協議的手操器配合,可以相互通訊,進行設定和監控。
三、適用介質:
1、高溫下粘稠介質;
2、易結晶的介質;
3、帶有固體顆粒或懸浮物的沉淀性介質;
4、強腐蝕或劇毒性介質;
5、可消除導壓管泄漏污染周圍環境現象的發生;可免去采用隔離液時,因測量信號的不穩定,需要經常補充隔離液的繁瑣工作;
6、連續測量界面和密度;
7、遠傳裝置可避免不同瞬間介質的交混,從而使測量結果真實地反映過程變化的實際情況;
8、衛生清潔要求很高的場合;
9、如食品、飲料和醫藥工業生產中,不僅要求變送器接觸介質部位符合衛生標準,并且應便于沖洗,以防止不同批量介質的交叉污染。
四、基本特點:
1、逐臺進行模擬“在線運行”考核,保證變送器在極限環境溫度、介質溫度和工作壓力(包括正壓或真空)下,穩定而可靠地工作。
2、采用“動態型面”遠傳膜片結構,超載后膜片不會受損;長期工作后精度不會發生變化。
3、選用全熔焊和剛性密封結構的灌充系統,根除了漏油現象的發生。
4、設計新穎的毛細管結合部件,使毛細管得到可靠的保護,在現場使用不易折斷。
5、品種、形式和尺寸多樣的遠傳裝置,以及豐富的灌充液種類,可以滿足各種不同場合的測量需要。
6、可提供各種特殊需要產品,包括高溫、高真空、快響應和不等長毛細管(長度≤3米)遠傳壓力變送器。
五、智能型性能特點:
單法蘭遠傳壓力變送器是對壓力變送器技術的延伸和發展,根據不同比重的液體在不同高度所產生壓力成線性關系的原理,實現對水、油及糊狀物的體積、液高、重量的準確測量和傳送。
1、指示新穎、讀數直觀、醒目、觀察指示器的方向可根據用戶需要改變角度。
2、結構簡單:無任何可動或彈性元件,因此呆靠性極高,維護量極少。
3、安裝方便:內裝式結構尤其顯示出這一特點,無需任何工具。
4、調整方便:零位、量程兩個電位器可在液位檢測有效范圍內任意進行零點遷移或量程的改變,兩個調整互不影響。
5、用途**;適用于高溫高壓、強腐蝕等介質的液位測量。
6、測量范圍大,不受貯槽高度的限制。
7、指示機構與被測介質完全隔離,密封性好,可靠性高,使用安全。
8、具備本安防爆和隔離防爆能力,可應用于各種危險場所。
9、具有防阻塞型設計可實現對糊狀介質液位的測量。
10、精細獨特的零點、滿程、非線性補償,保證儀表使用條件范圍內的精度,長期穩定性好。
六、技術指標:
1、輸出信號:4~20MA.DC二線制(模擬)二線制4~20mA直流信號上疊加數字信號,由用戶選擇線性或開方輸出。(智能)
2、供電電源:12~45V.DC;
3、負載特性:
電源影響:<0.005%輸出量程/V;
負載影響:電源穩定時,無負載影響;
測量精度:調校量程的±0.1%,±0.2標配精度為±0.2%,若選擇其他精度請在訂貨選型時注明;
量 程 比:10:1或100比1;
阻 尼:通常可在0.1~16秒之間可調,當灌充惰性液或帶遠傳裝置時,時間常數會增大;
啟動時間:<2秒,不需預熱。
4、工作環境:環境溫度 -29~93℃(模擬放大器);
29~75℃(數字/智能放大器);
-29~65℃(帶顯示表頭);
環境濕度 0~95%。
5、防護特性:防護能力 IP65;
6、防爆類型:隔爆型 Exd II BT4-6;
本安型 Exia II CT5。
7、靜壓影響:零位誤差:±0.5%量程限值,對于32MPa在管道壓力下通過調零給予校正。
8、電磁輻射影響:0.05%量程值,接受輻射頻率27~500MHz,試驗場強3V/m。
9、指示表(%):液晶數顯 精度±0.2%。
10、振動影響:任何方向200Hz振動時,±0.05%/g。
11、安裝位置:膜片未垂直安裝,可能產生小于0.24KPa的零點誤差,但可通過調零來修正。
12、重 量:3.9Kg(不包括附件)。
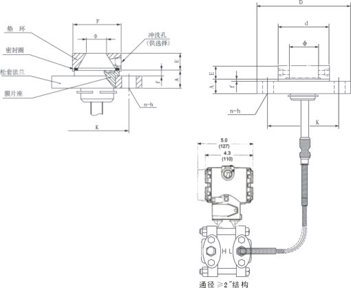
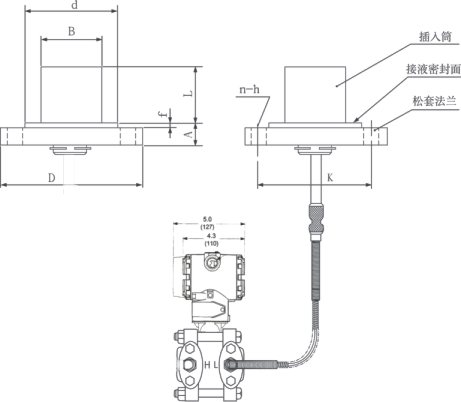
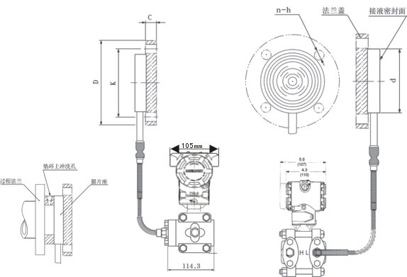
七、遠傳壓力變送器分類及結構圖:
1、平法蘭遠傳壓力變送器(RFW):
|
|||
2、凸法蘭式遠傳壓力變送器(EFW):
|
|||
3、扁平式遠傳壓力變送器(PFW):
![]() |
||
4、螺紋安裝式遠傳壓力變送器(RTW):
|
|||
5、衛生式遠傳壓力變送器(SSW):
|
|||
6、螺紋連接式遠傳裝置(UCW):
|
|||
八、使用注意事項:
在使用過程中的要注意考慮下列情況:
1、測量液體壓力時,遠傳壓力變送器的安裝位置應避免液體的沖擊(就是水錘現象),以免傳感器過壓損壞。
2、在遠傳壓力變送器變送器冬季發生冰凍時,按裝在室外的變送器必需采取防凍措施,避免引壓口內的液體因結冰體積膨脹,導至傳感器損壞。
3、接線時,將電纜穿過防水接頭(附件)或繞性管并擰緊密封螺帽,以防雨水等通過電纜滲漏進變送器殼體內。
4、遠傳壓力變送器變送器在測量液體壓力時,取壓口應開在流程管道側面,以避免沉淀積渣。
5、要防止法蘭液變送器與腐蝕性或過熱的介質接觸,還要防止渣滓在導管內沉積;
6、在測量氣體的壓力時,取壓口要開在流程管道的**,且法蘭液位變送器也要安裝在流程管道的上部以便讓沉積的液體快速注入到流程管道中。
7、遠傳壓力變送器要注意傳感器的導壓管要安裝在溫度波動小的地方;
8、遠傳壓力變送器的測量蒸汽或其它高溫介質時,需接加緩沖管(盤管)等冷凝器,不應使變送器的工作溫度超過極限。
九、遠傳壓力變送器選型:
遠傳壓力變送器是在變送器主體基礎上附加遠傳裝置的變型產品,所以其選型工作可分二步進行:首先確定變送器主體的類型(DP)、測量范圍和結構材料,然后按現場的安裝要求確定遠傳裝置類型和尺寸。由于組成灌充系統的各參數(如灌充液的工作溫度、粘度和毛細管的長度)與變送器的性能指標密切相關,因此歸入變送器主體選型范疇,不單獨列表選擇。
上一條:雙法蘭液位變送器
下一條:雙法蘭遠傳差壓液位變送器
跟此產品相關的產品 / Related Products
產品中心
Product Center
聯系我們









